Fenêtres
Portes-fenêtres
Baies vitrées
Portes d'entrée
Protections solaires
Portes de garage
Clôtures & Portails
M'identifier
Conseils gratuits

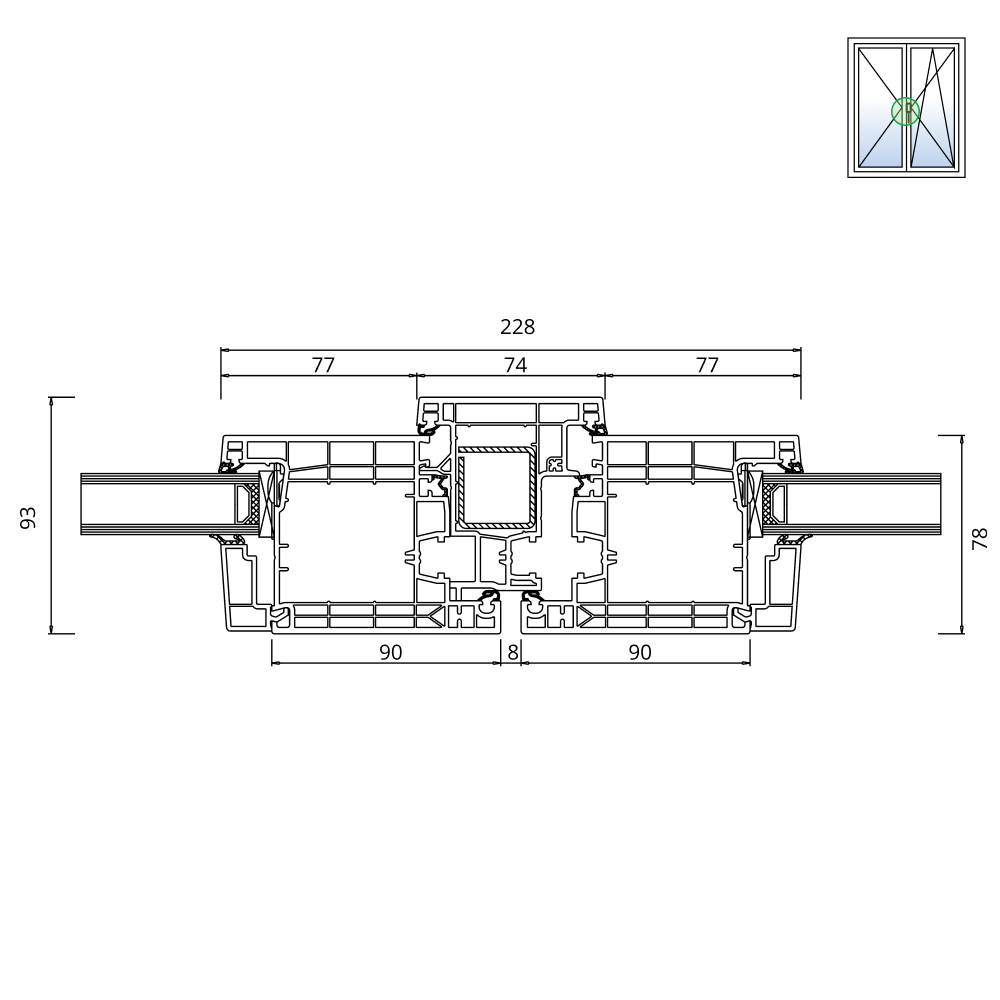
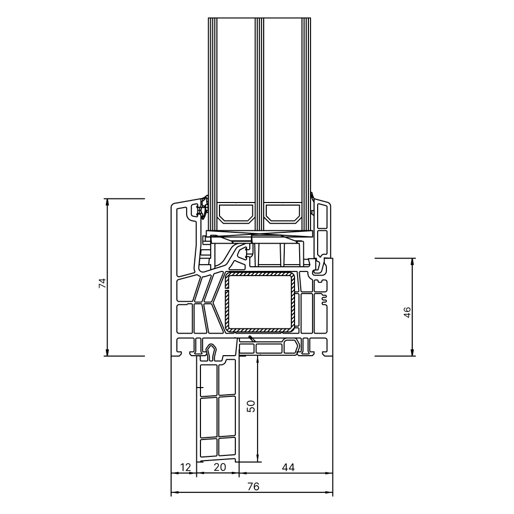
Vous retrouverez ici tous les détails réglementaires, les coupes de profilés et les plans détaillés des fenêtres et portes-fenêtres en PVC disponibles sur notre site internet. Ces plans détaillés vous permettent de visualiser avec précision toutes les dimensions et tous les détails de nos fenêtres et portes-fenêtres en PVC. Vous y trouverez tous les profils de votre cadre de fenêtre ou de porte-fenêtre afin de pouvoir préparer au mieux le montage. La configuration de la fenêtre ou porte-fenêtre devient ainsi un jeu d'enfant. Pour le montage, nous recommandons de suivre les directives RAL.





























































































































































































































































































Chez fenetre24.com, la fabrication des fenêtres et portes-fenêtres se déroule dans des usines les plus modernes et plus sophistiqués dans le domaine de la fabrication des menuiseries PVC en Allemagne. Cela assure notre productivité dans la construction des fenêtres et portes-fenêtres. Par contre, la présence humaine des constructeurs est le maillon le plus important dans notres usines. Le spécialiste surveille non seulement la fabrication, grâce à son expertise et son expérience dans la menuiserie et les vitrages, il gère aussi tout litige immédiatement.
À ce stade, nous vous montrons tous les détails de contrôle, de profilés et de dessins CAD des fenêtres PVC, qui sont disponibles chez nous.
Veuillez noter que ce sont des croquis détaillés. Si vous souhaitez savoir exactement quels profilés et quels éléments sont utilisés avant de commander, veuillez contacter notre service clients au 04.78.14.36.46. Nos experts se feront un plaisir de vous aider à configurer vos produits et de répondre à vos questions.
Sur notre site web, nous vous présentons les coupes, les détails et des plans CAD des menuiseries fabriquées en Allemagne par fenetre24.com. Vous retrouvez tous les entraxes et distances de nos profilés de fenêtres et portes-fenêtres. En outre, vous visualisez aussi l’armature de nos profilés PVC. Avec ces données, la pose de vos menuiseries sera plus simple et vous pouvez mieux visualiser la nouvelle fenêtre PVC. Grâce au configurateur de fenêtres et de portes-fenêtres, vous pouvez aussi configurer votre menuiserie directement en ligne en visualisant le prix en temps réel.
fenetre24.com met à votre disposition les croquis, coupes et plans en CAD de nos menuiseries PVC. Ainsi, vous avez accès, sur des plans professionnels en CAD.
Avec l'aide des croquis détaillés des fenêtres et portes-fenêtres présentés, vous pouvez vous renseigner soigneusement sur la structure des menuiseries fabriquées par fenetre24.com.