Fenêtres
Portes-fenêtres
Baies vitrées
Portes d'entrée
Protections solaires
Portes de garage
Clôtures & Portails
M'identifier
Conseils gratuits
Table des matières
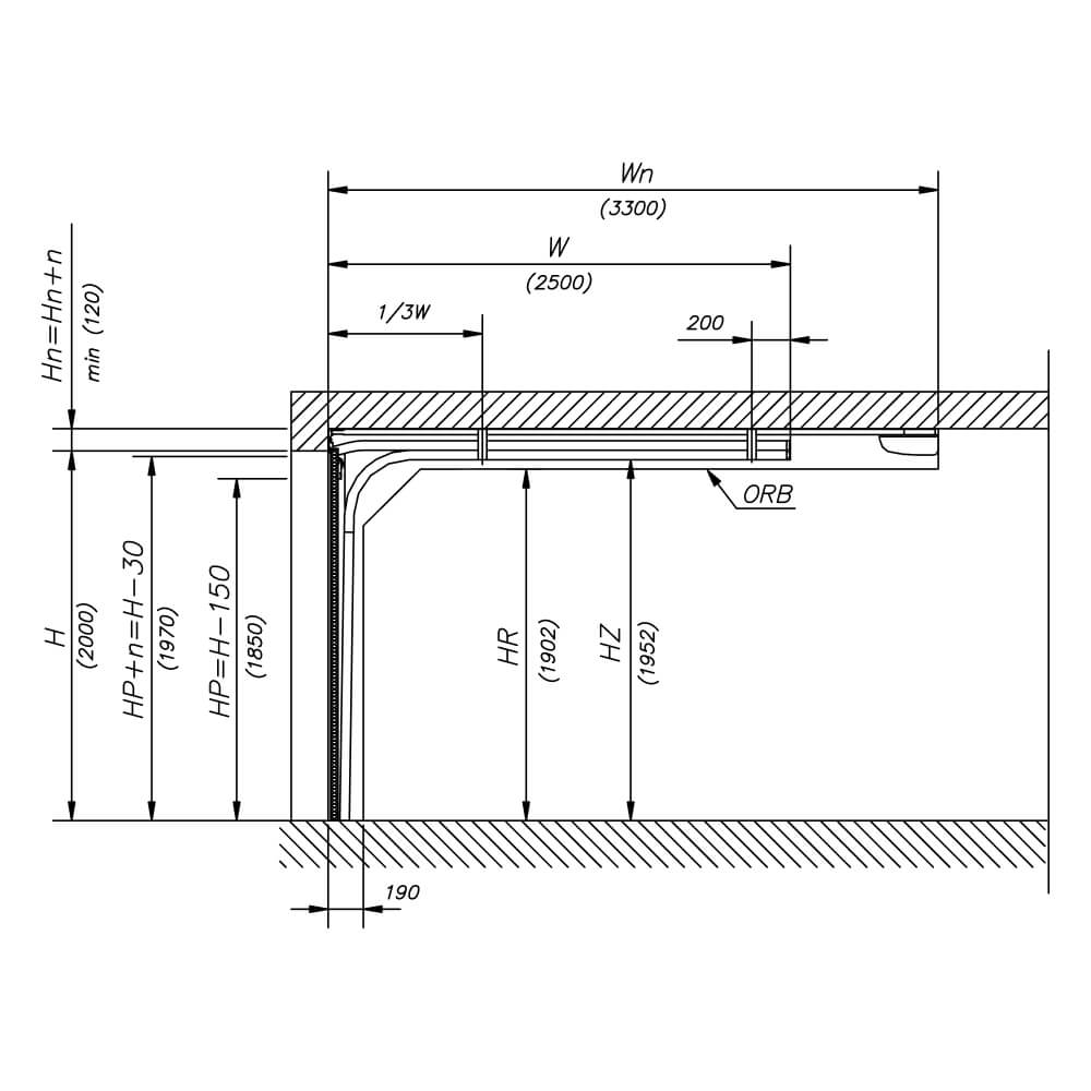
Sur cette page, vous trouverez tous les détails et croquis détaillés relatifs à nos portes de garage sectionnelles. Avant de finaliser votre achat, assurez-vous que la porte choisie correspond aux dimensions requises. Les portes de garage équipées de ressorts de traction ou de ressorts de torsion à l'arrière sont particulièrement adaptées aux garages de petite taille. Les croquis détaillés vous fournissent toutes les informations nécessaires relatives à la structure de la porte, vous permettant ainsi de comparer minutieusement les différents systèmes de levage et de choisir la porte sectionnelle qui convient le mieux à votre garage.
























Ci-dessous, vous trouverez toutes les dimensions et croquis détaillés de nos portes de garage enroulables. Avant de finaliser votre commande, assurez-vous que la porte sélectionnée soit adaptée aux dimensions de votre garage. Nos portes de garage enroulables se distinguent par leur méthode d'installation flexible, que vous souhaitiez l'installer à l'intérieur ou à l'extérieur de votre garage. Les croquis détaillés vous fournissent toutes les informations nécessaires relatives à la structure de la porte, vous permettant ainsi de comparer minutieusement les différents systèmes de levage et de choisir la porte sectionnelle qui convient le mieux à votre garage.








