Fenêtres
Portes-fenêtres
Baies vitrées
Portes d'entrée
Protections solaires
Portes de garage
Clôtures & Portails
M'identifier
Conseils gratuits

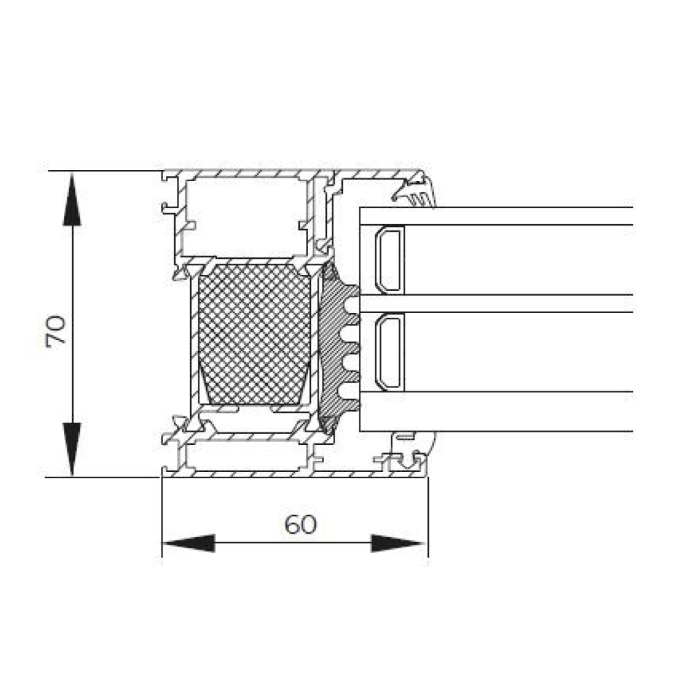
Vous retrouverez ici tous les détails réglementaires, les coupes de profilés et les plans détaillés des portes d'entrée en Acier-Alu disponibles sur notre site internet. Ces plans détaillés vous permettent de visualiser avec précision toutes les dimensions et tous les détails de nos portes d'entrée en Acier-Alu. Vous y trouverez tous les profils de votre cadre de portes afin de pouvoir préparer au mieux le montage. La configuration de la porte devient ainsi un jeu d'enfant.






Veuillez noter que ce sont des croquis détaillés. Si vous souhaitez savoir exactement quels profilés et quels éléments sont utilisés avant de commander, veuillez contacter notre service clients au 04.78.14.36.46. Nos experts se feront un plaisir de vous aider à configurer vos produits et de répondre à vos questions.