Fenêtres
Portes-fenêtres
Baies vitrées
Portes d'entrée
Protections solaires
Portes de garage
Clôtures & Portails
M'identifier
Conseils gratuits

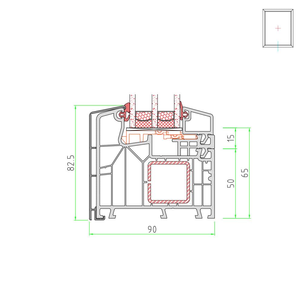
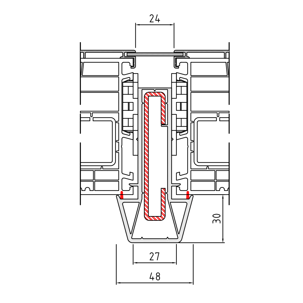
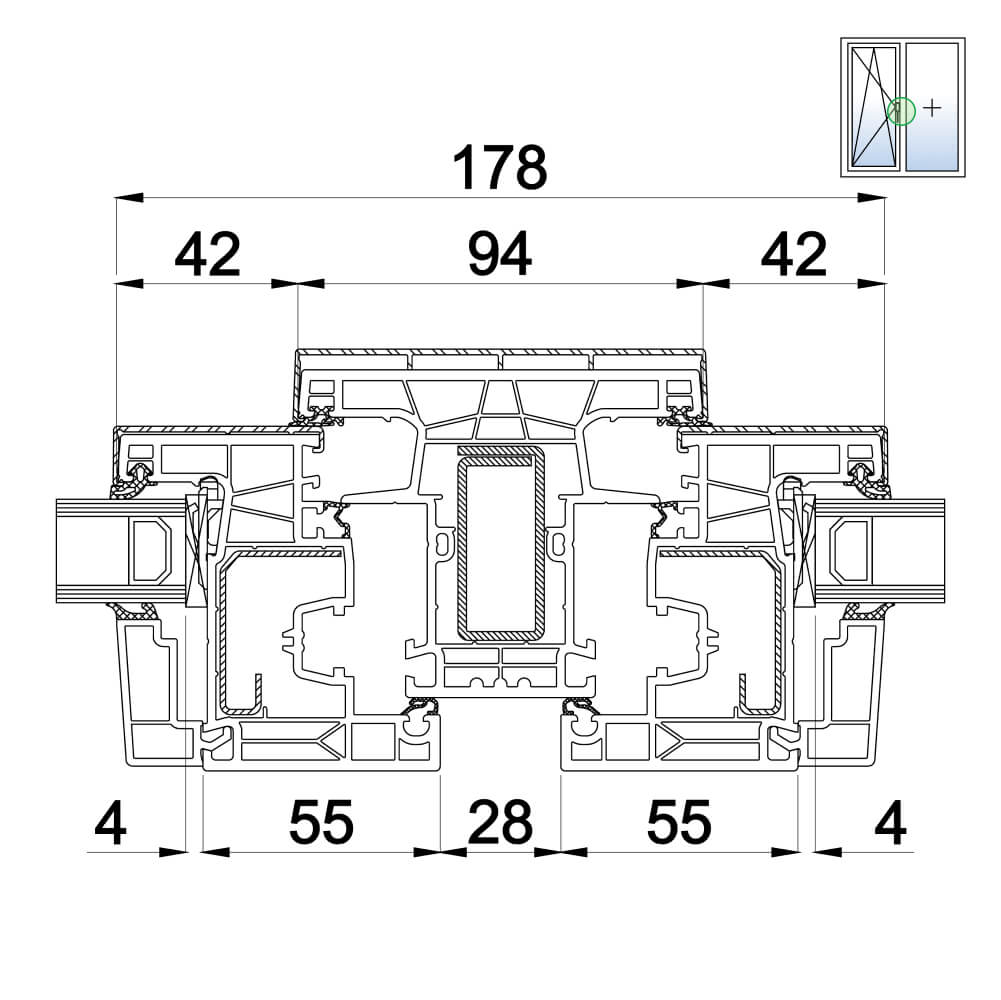
Retrouvez ici l’ensemble des détails techniques, les coupes de profilés et les plans précis des fenêtres et portes-fenêtres en PVC-Alu disponibles sur notre site. Ces schémas détaillés vous offrent une visualisation claire des dimensions et spécificités de chaque modèle. Vous y découvrirez tous les profils nécessaires à l’installation de votre cadre de fenêtre ou de porte-fenêtre, afin de faciliter la préparation du montage. La configuration devient ainsi simple et intuitive. Pour une installation optimale, nous recommandons de suivre les directives RAL.
Sommaire


















































Veuillez noter que ce sont des croquis détaillés. Si vous souhaitez savoir exactement quels profilés et quels éléments sont utilisés avant de commander, veuillez contacter notre service clients au 04.78.14.36.46. Nos experts se feront un plaisir de vous aider à configurer vos produits et de répondre à vos questions.
Nous nous réservons le droit d'apporter des modifications techniques.