Fenêtres
Portes-fenêtres
Baies vitrées
Portes d'entrée
Protections solaires
Portes de garage
Clôtures & Portails
M'identifier
Conseils gratuits
























dès 94
€
dès 134
€
-30 %
incl. 20% de TVA, hors frais de livraison
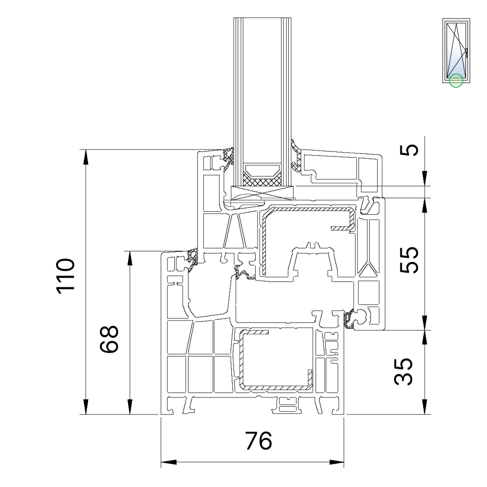
Profilé aluplast 6 chambres à design à pan décalé
Profondeur de montage 76 mm
Double ou triple vitrage
3 niveaux d'étanchéité pour une sécurité et une isolation thermique renforcée (système safetec inside)
Protection anti-effraction intégrée
Uw = 0,83 W/m²K meilleure variante possible
Excellente isolation thermique

Vitrage standard jusqu'à la valeur U g = 1,1 W/m²K
Protection anti-effraction renforcée grâce au système safetec inside : la barre centrale périphérique renforce non seulement votre isolation, mais empêche les tentatives de dégondage lors des effractions.
Disponible en blanc ou décor
Cadre en PVC renforcé en acier
Vitrage de sécurité possible
Ferrure oscillo-battante avec blocage anti fausse manœuvre
Joints de couleur noire
Maîtresse en termes de sécurité, la porte-fenêtre IDEAL® neo MD est dotée du système safetec inside. Il s’agit d’une barre centrale périphérique qui vient non seulement renforcer votre isolation, mais évite toute tentative de dégondage.
Avec une robustesse de cadre telle que celle du modèle IDEAL® neo MD, vous passerez vos nuits en toute sérénité.
Dotée d’un profilé mince et longiligne, votre menuiserie est la reine du design. Elle élargit grandement vos panoramas et assure profondeur et espace à vos pièces à vivre.

Si la fonction première d’une porte-fenêtre est de faciliter vos allées et venues d’un espace à un autre, pas question de mettre en second plan son isolation thermique.
Les menuiseries IDEAL® neo MD sont dotées d’un double vitrage, mais peuvent également en contenir un troisième selon vos exigences.
En plus de pouvoir renforcer les attributs thermiques de votre porte-fenêtre, vous pouvez également la colorer à votre guise afin qu’elle s'inscrive parfaitement dans le style de votre habitation et réponde à vos exigences stylistiques.


« Nous sommes très satisfaits de la qualité des menuiseries. Merci à toute l'équipe ! »

« De vraies fenêtres de qualité ! La pose s'est faite sans encombres. »

« Livraison effectuée à temps. Super prix et bonne qualité. »

« Fenêtre commandée avec des dimensions personnalisées. Livreur très arrangeant qui a aidé à porter la menuiserie. »
Le profilé aluplast IDEAL® neo MD est un profilé en PVC à 6 chambres et à la conception affleurée.
