Fenêtres
Portes-fenêtres
Baies vitrées
Portes d'entrée
Protections solaires
Portes de garage
Clôtures & Portails
M'identifier
Conseils gratuits

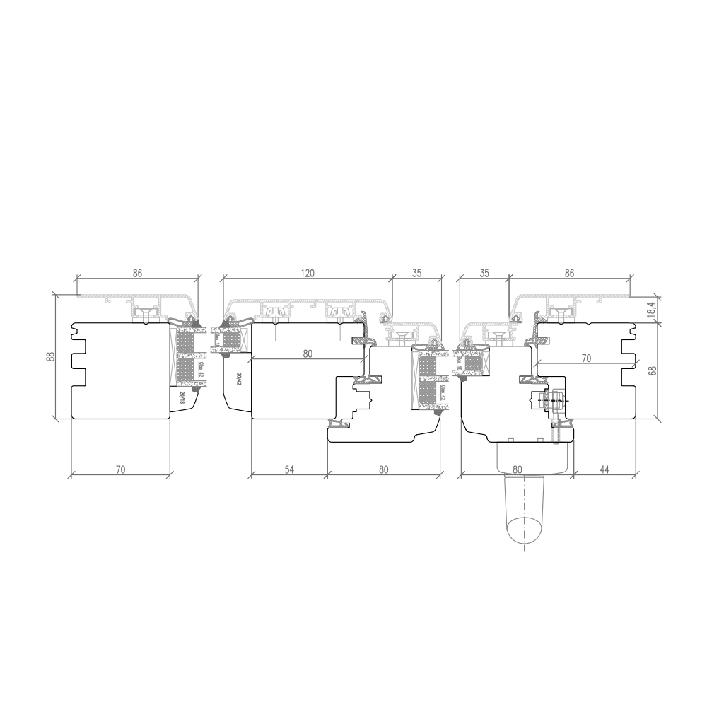
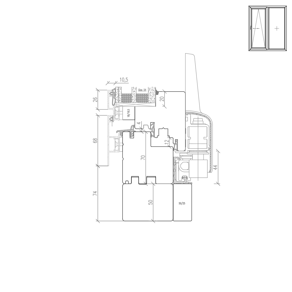
Explorez ici tous les détails normatifs, les coupes des profilés et les plans précis des baies oscillo-coulissantes à profilés bois-alu disponibles sur notre site internet. Ces dessins détaillés vous offrent une vision précise de toutes les dimensions et spécifications de nos baies oscillo-coulissantes en bois-alu. Vous trouverez tous les profils de vos cadres de baie, facilitant ainsi la préparation pour le montage. Configurer et installer votre baie oscillo-coulissante devient ainsi plus accessible. Pour un montage optimal, nous vous recommandons de suivre les directives RAL.

























































Veuillez noter que ce sont des croquis détaillés. Si vous souhaitez savoir exactement quels profilés et quels éléments sont utilisés avant de commander, veuillez contacter notre service clients au 04.78.14.36.46. Nos experts se feront un plaisir de vous aider à configurer vos produits et de répondre à vos questions.
Nous nous réservons le droit d'apporter des modifications techniques.