Fenêtres
Portes-fenêtres
Baies vitrées
Portes d'entrée
Protections solaires
Portes de garage
Clôtures & Portails
M'identifier
Conseils gratuits
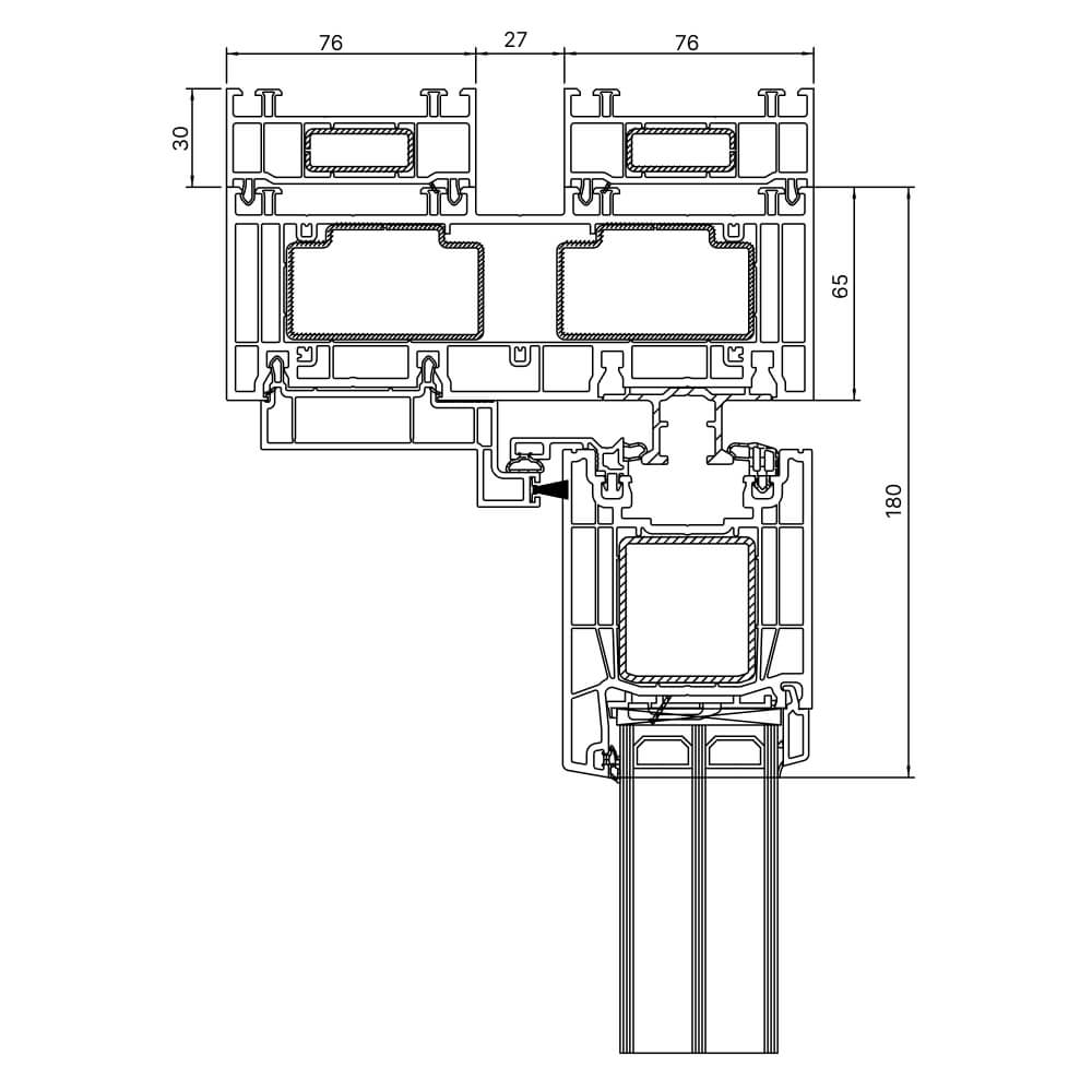
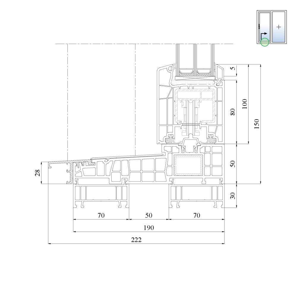
Sur Fenetre24.com, vous pouvez découvrir les coupes, les détails et des plans CAD de nos baies soulevantes-coulissantes fabriquées en Allemagne par fenetre24.com. Vous trouverez tous les entraxes et distances de nos profilés de baies. En outre, vous visualiserez aussi l’armature de nos baies soulevantes-coulissantes en PVC. Avec ces données, la pose de vos baies sera plus simple et pratique.















Veuillez noter que ce sont des croquis détaillés. Si vous souhaitez savoir exactement quels profilés et quels éléments sont utilisés avant de commander, veuillez contacter notre service clients au 04.78.14.36.46. Nos experts se feront un plaisir de vous aider à configurer vos produits et de répondre à vos questions.
Nous nous réservons le droit d'apporter des modifications techniques.